MDG型吊钩门式起重机
产品型号: MDG型
起升吨位: 5-32/5吨
起升高度: 11米
适用跨度: 18-35米
工作级别: A5
单梁吊钩门式起重机产品介绍:
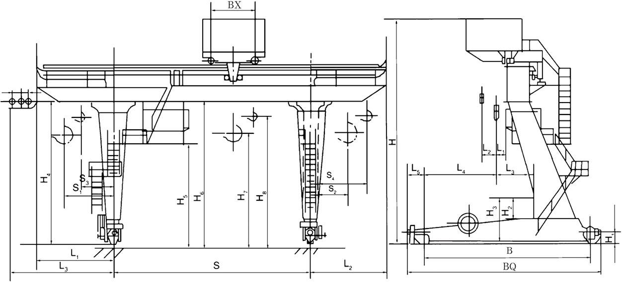
MDG型单主梁吊钩门式起重机由桥架,大车运行机构,小车,电气设备等组成。小车在一根单主梁上运行,通过水平或垂直反滚轮,安*反钩,其运行的安*性。**机械均在司机室内操作,灵活便捷。本机也可配用抓斗。
MDG型单梁吊钩门式起重机适用于露天仓库或铁路沿线进行一般的装卸和起重搬运工作。其工作环境温度-20℃-+40℃。
单梁吊钩门式起重机订购说明:
采购门式起重机请告知以下数据,以便我们能更快确认您的需求!
1、起重量;
2、跨度(轨道中心至导轨中心);
3、起升高度(钩中心接地);
4、是否需要外悬(请提供外悬长度);
5、需要导轨和电缆吗?(请提供运行长度);
6、其他其它要求如果您有更多的详细资料,请告知,我们会更*确的给出价格!

门式起重机是桥式起重机的一种变形,又叫龙门吊。主要用于室外的货场、料场货、散货的装卸作业。门式起重机在结构上由门架、大车运行机构、起重小车和电气部分等组成。为了扩大起重机作业范围,主梁可以向一侧或两侧伸到支腿以外,形成悬臂。该起重机具有场地利用率高、作业范围大、适应面广、通用性强等特点。