产品型号: MG型
起升吨位: zui大可500吨
起升高度: 12米
适用跨度: 18-35米
工作级别: A5
双梁门式起重机产品介绍:
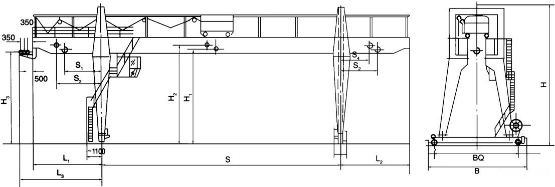
MG型通用门式起重机(双梁吊钩门式起重机) 有桥架、大车运行机构、小车、电器设备等组成。桥架采用箱型双梁焊接结构,大车运行机构采用分别驱动,**机构均在操纵室操纵。
MG型双梁吊钩门式起重机适用于露天仓库、料场、铁路货站、港口码头等装卸搬运。还可以配以多种专*钩具进行多种其它作业。
MG型双梁吊钩门式起重机根据其形状可分为A型双梁门式起重机和U型双梁门式起重机.

门式起重机是桥式起重机的一种变形,又叫龙门吊。主要用于室外的货场、料场货、散货的装卸作业。门式起重机在结构上由门架、大车运行机构、起重小车和电气部分等组成。为了扩大起重机作业范围,主梁可以向一侧或两侧伸到支腿以外,形成悬臂。该起重机具有场地利用率高、作业范围大、适应面广、通用性强等特点。