
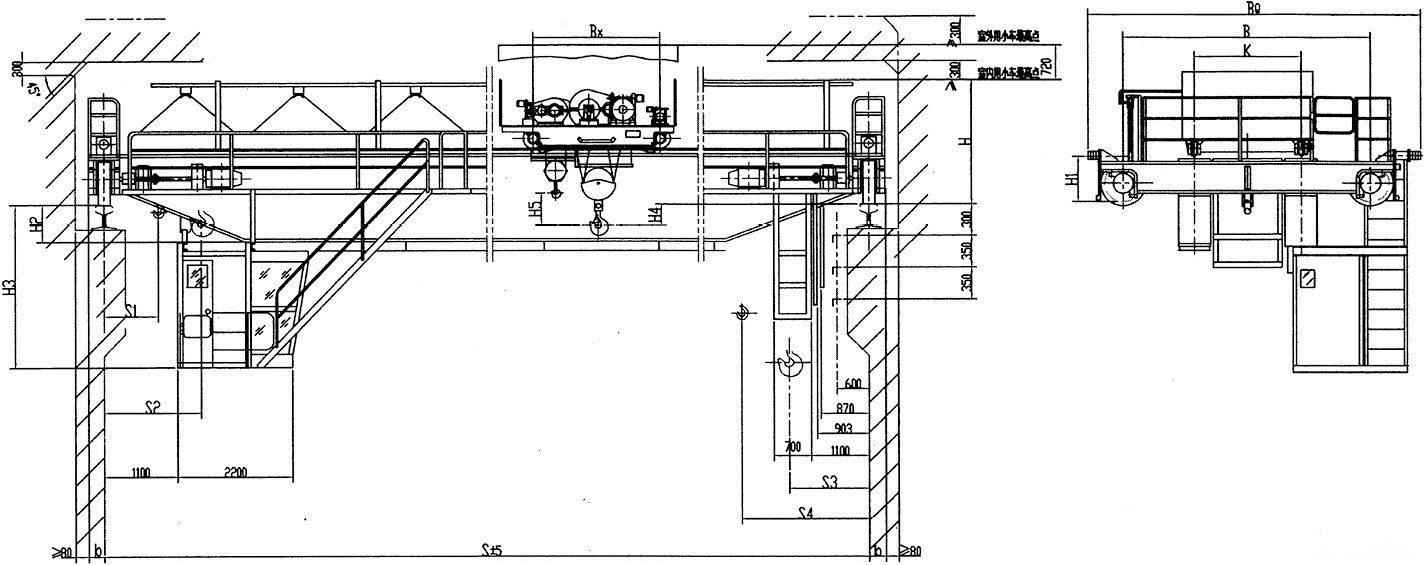
QDY型冶金双梁起重机
产品型号: QDY型
起升吨位:< 75吨
起升高度:20米
适用跨度:10.5-31.5米
工作级别:A7
冶金桥式起重机产品介绍:
QDY型冶金桥式起重机是在QD型通用桥式起重机基础上改进设计的,主要用于吊运熔融金属的冶金、铸造等场所,整机工作级别为A7额定起重量小于75T,起重机装配与试验符合国家质量监督检验检疫总局所发的质检办特【2007】375号文件。其他吊运熔融的非金属物料和吊运炽热固态金属的场所也可参照选用。
环境条件:
1、起重机电源为三相交流电,额定频率为50HZ,额定电压为380V;
2、工作环境温度为-10℃~60℃;
3、在40℃的温度下相对湿度不超过50%;
4、如超过上述要求,根据用户要求按订货合同条款执行。
订货须知:
用户在订货或签订合同时,*须将本机的技术参数(额定起重量、起升高度、跨度等)描述清楚,以便提供满足工况要求和工作条件的产品。


双梁起重机介绍:
双梁桥式起重机主要由桥架、大车运行机构、小车、电器设备等组成。根据使用频繁程度不同,分为A5、A6、A7三种工作级别。吊钩桥式起重机动作操纵全部在司机内完成。